当前位置:资源 > 设计图纸 > 球阀
icon2019-09-27
icon1097
icon2
上传我的文件
获取共享分
sucai
文件简介
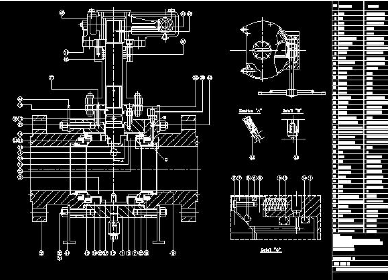
高压球阀1500lb forging low temp ball valvel
声明
工客网仅提供网络存储空间,所有文件资料均是用户自行上传分享,仅供网友学习交流,未经上传用户授权,请勿作他用。如有违反《工客网协议》或者您的权利被侵害,请联系copyright@gongkew.com进行处理。
相关推荐
战略合作伙伴
工客网公众号
Copyright © 2018 gongkew.com All Rights Reserved
版权所有·苏州网景视讯数字科技有限公司
工客网是网络服务平台方,若您的权利被侵害,请联系  13182603427  copyright@gongkew.com

备案号:苏ICP备19001566号-1 增值电信业务经营许可证:苏B2-20201113 广播电视节目制作许可证:(苏)字第02214号
违法和不良信息举报电话:0512-68793249

  网络工商电子营业执照   苏公网安备 32050602011266号